上海承质船用阀门生产的船用阀门可按中国GB、机械部JB、化工标准HG、美标API、ANSI、德标DIN、日本JIS、JPI、英标BS生产,企业积极实施ISO9001:2000质量认证体系,并严格按照各技术标准和图纸设计、生产、检验。以优异的品质,完善的服务和及时的交货赢得了众多造船、修船企业的一致信赖和好评。并可根据用户需要提供CCS、LR、ABS、GL、DNV、BV、NK、RINA等世界知名船级社的产品检验证书。承质阀门拥有专业的生产设备和技术工程师,有能力按照各国标准以及各种行业标准生产制造优质船用阀门。
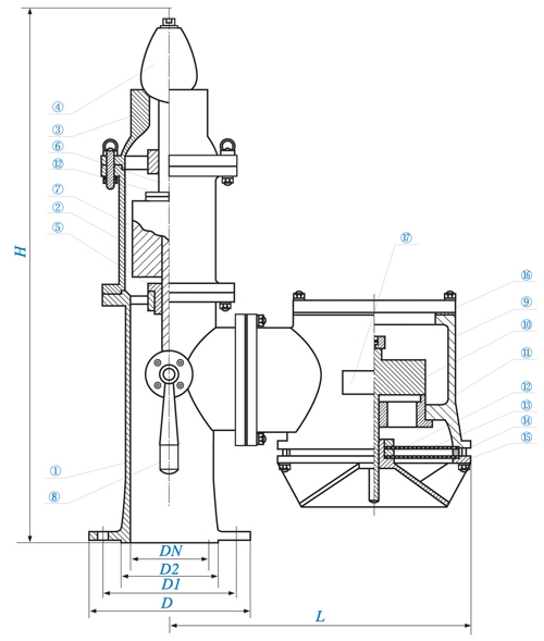
DF-ISO型高速透气阀的结构图

DF-ISO型高速透气阀的选用和安装

cy彩运官方网站 一般用于装载环氧丙烷类的液货船舶,均能装载普通化学品。因此,每个液货仓必须装有CF-ISO型和DF-ISO型高速透气阀各一个,其安装方法如下图。当船舶装载环氧丙烷类货品时,只要将CF-ISO型压力阀强制关闭即可,反之,如装载普通化学品时,只要开启强制关闭装置。装卸货前,应按运作要求进行阀门升降检查。检查时,必须同时检查两个阀的压力阀和真空阀,因为该使用方法中的两个阀门具有相互保险的作用,可以最大限度地防止货舱超压和失压。依据DF型压力/真空阀的流量范围,可以安装在DN125(含DN125)以下的透气管上,连接法兰由用户任选。
DF-ISO型高速透气阀的压力运行曲线图

cy彩运官方网站 7.4 DF-ISO型高速透气阀型号和主要性能参数

声明:
本文中所有文字、数据、图片均只适用于参考。需要查看更多的DF-ISO型高速透气阀性能参数、结构尺寸参数、价格等详情,或要求高质量印刷样本,请联系我们。
· 电话:18717746989
· 邮箱:sales@shczvalve.com
承质订货须知:(国家标准):
一、A:产品名称、型号、公称通径B:介质及温度、压力范围C:是否有附件、交货期、特殊要求等以便我们的为您正确选型。
二、若已经由设计单位选定我公司的阀门型号,请您根据阀门参数直接与我们销售中心订购。
三、当您使用的场合非常重要或环境比较复杂时,请您提供设计图纸和详细参数,我们的工程师专家会为您审核与分析。我们可以为您提供专业的解决方案,包括设计、定做、成套、运行、服务。我们一直致力于阀门行业领域的领导者,为您提供最新的船用阀门知识、最好的服务、最佳的技术顾问。
感谢您访问我们的网站【http://zhzb360.com】,如有任何疑问,您可以致电给我们,我们一定会尽心尽力为您提供优质的服务。本厂专业提供船用蝶阀、船用闸阀、船用止回阀、船用调节阀、船用减压阀、船用呼吸阀、高速透气阀、船用快关阀、船用自闭阀、船用旋塞阀、船用消防阀、船用通海阀、船用防浪阀、船用滤器、船用空气帽、船用球阀、船用截止阀、船用截止止回阀、船用阀组、船用截止阀箱、船用针型阀、船用电磁阀、船用隔膜阀、船用压力表阀等各类船用阀门,不锈钢阀门。